Leave a Message

Thank you for your message. We will be in touch with you shortly.

Property Description

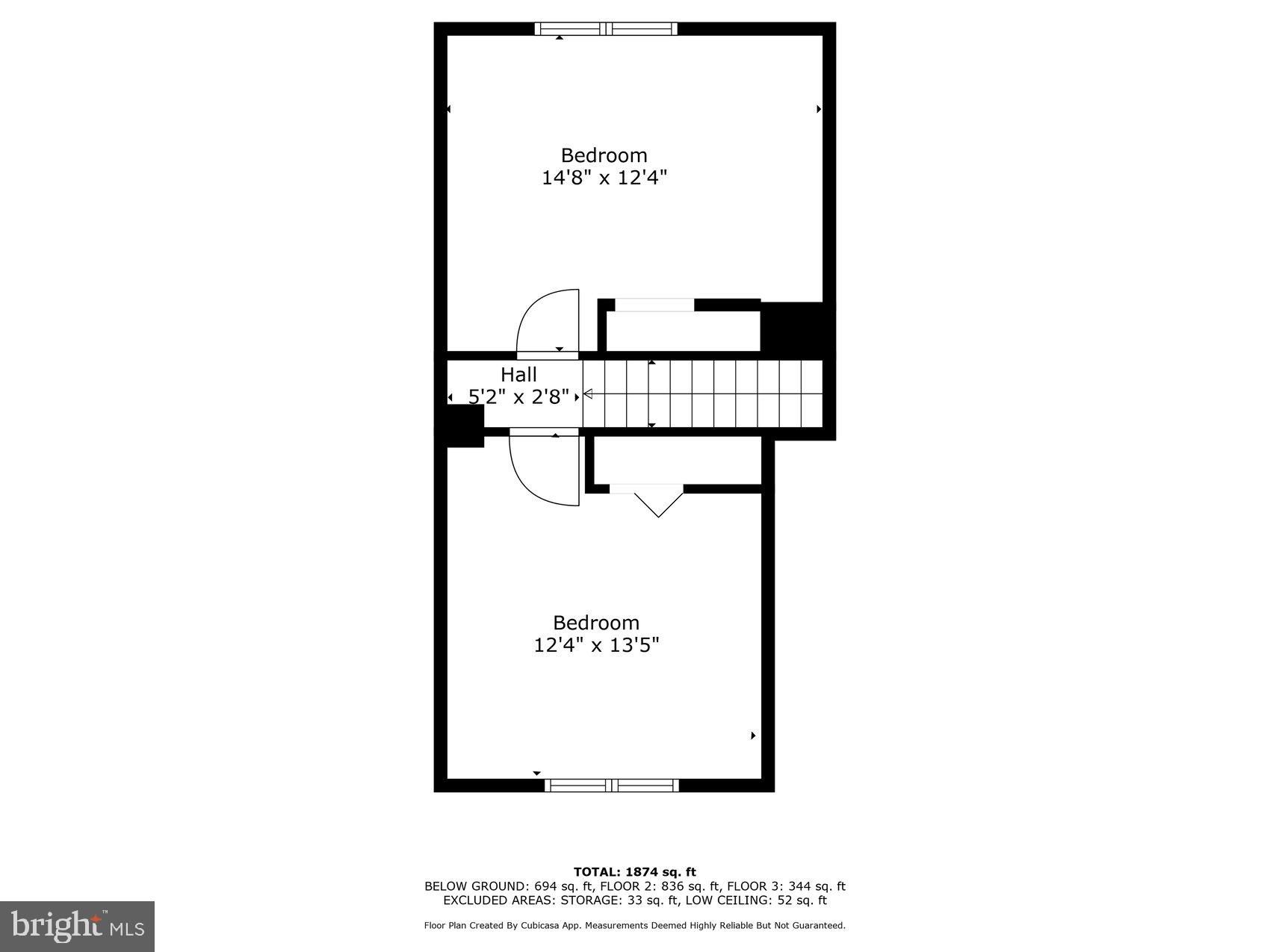
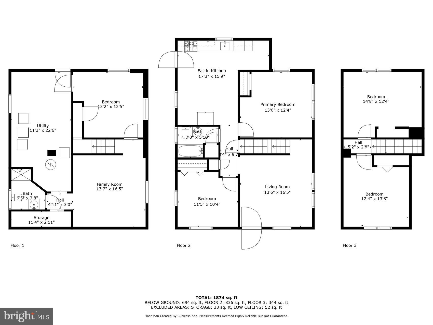
The cutest 4BR/2BA Cape Cod style home sits behind a white picket fenced front yard with a covered front porch, and welcomes you to your new home. Step into a beautifully maintained home with hardwood flooring, tons of natural light, a large living room, and spacious eat-in kitchen. The kitchen features plenty of cabinets and countertop space, stainless steel appliances, and a deep stainless sink under a window. Step through the arched entry into the hallway leading to a spacious primary sized bedroom, a sizable secondary bedroom, and a full bath. On the second floor are two similar sized secondary bedrooms with closets and built-in storage. The lower level is finished offering additional living space with the possibility of a fifth bedroom/office space, family space, a full bath with walk-in shower laundry, and storage. The driveway leads to an oversized side deck that wraps around to the fenced yard offering a large entertaining area that overlooks a yard filled with green space, and a large storage shed with electricity that has endless potential. This home is move-in ready with so much to offer new homeowners and is located in close proximity to shopping, restaurants, and commuter routes.

Overview

Property Status
Sold
Lot Size
5,500 Sq.Ft.
MLS ID
MDAA2092580
Property Type
Residential
Year Built
1956

Features & Amenities

Neighborhood
Ann Arundel County
Architecture Styles
Cape Cod
Stories
3
Water Source
Public
Pool
None
Roof
Asphalt
Parking
Gravel, Driveway
Heat Type
Natural Gas, Forced Air
Air Conditioning
Central Air, Ceiling Fan(s), Electric
Appliances
Gas Water Heater
Sewer
Public Sewer
Substructure
Block
School District
ANNE ARUNDEL COUNTY PUBLIC SCHOOLS
Sales Price
$310,000
Real Estate Tax
$3,002/yr
Zoning
R5

Downloads

314 Audrey Ave

Schedule a Tour

We would love to show you our beautiful property. Please select your preferred date and time below. An agent will be in touch shortly to confirm your appointment.

Enter a valid email

Thank you

for your interest in 314 AUDREY AVENUE, BROOKLYN, MD 21225

back to page
314 Audrey Ave
Navigate
Ann Arundel County

Explore Ann Arundel County

read more
  • Step into a beautifully maintained home with hardwood flooring, tons of natural light, a large living room, and spacious eat-in kitchen.

    Elaina Bellas

I'm Interested In

314 Audrey Ave

or
  • CallElaina Bellas

    License #664692

    (443) 386-6908
  • Follow Us On Instagram